commercial & industrial projects

/ kurumsal & sanayi projeleri

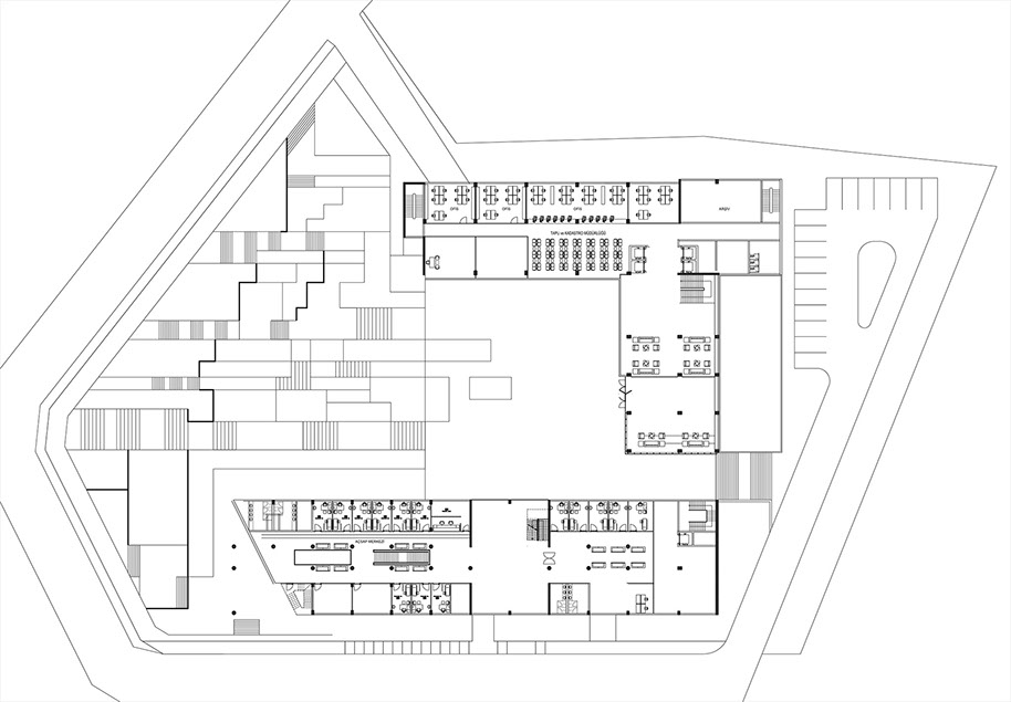
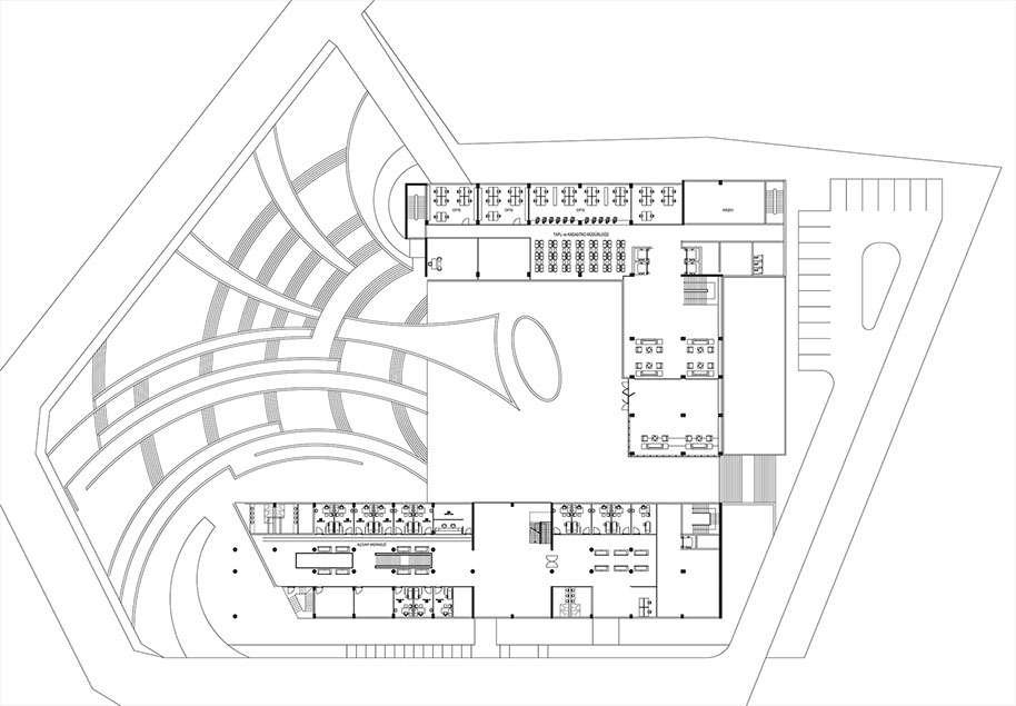
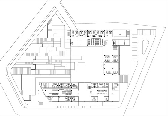
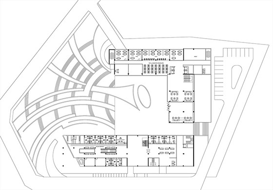
PENDİK KAYMAKAMLIK BİNASI

 

Kaymakamlık binası bünyesinde ayrıca ilçe Sağlık Müdürlüğü ve kreş bulundurmaktadır. Tasarımdaki ana fikir, tüm bu birimlere hizmet eden toplayıcı karakterde küçük bir yeşil meydan yaratmaktır. Zemindeki yükseklik farkının kullanıcıyı etkilemediği bir çalışma oluşturulmuştur. Land Design Factory ile beraber tasarlanmıştır.

 

Dış mekan peyzaj alanı : 6.500m2

Çatı bahçesi alanı : 1.800m2

PENDIK DISTRICT GOVERNORSHIP BUILDING

 

The Municipality facility includes a health center and a kindergarten unit. The main idea was to create a small green square resolving the levelling problems for the pedestrians. Designed together with Land Design Factory.

 

Exterior landscape area : 4.000m2

Roof garden area : 1.800m2

 

© 2018 SPACE WORX LANDSCAPE ARCHITECTURE + URBAN DESIGN

All rights reserved.

#spaceworx

commercial & industrial projects / kurumsal & sanayi projeleri